Málaga

For sale Townhouse Costa Del Sol Málaga € 1.749.000,-

Ref.no: RSOR5342944
Price: € 1.749.000,-

1-7980e48d732b6fc85c14b43b94d2aa54.jpg

For sale Townhouse Costa Del Sol Málaga € 1.749.000,-

Bedrooms8
Bathrooms3
Lot size142m²
Living area414m²
Poolno
Gardenyes
Parkingno
Setting: Close To Port, Close To Town, Close To Schools
Climate Control: Fireplace
Features: Fitted Wardrobes, Near Transport, Private Terrace, Storage Room, Utility Room, Staff Accommodation, Near Church, Fiber Optic
Ref.no: RSOR5342944
Price: € 1.749.000,-

More information ›››
For sale Townhouse Costa Del Sol Málaga € 1.749.000,-

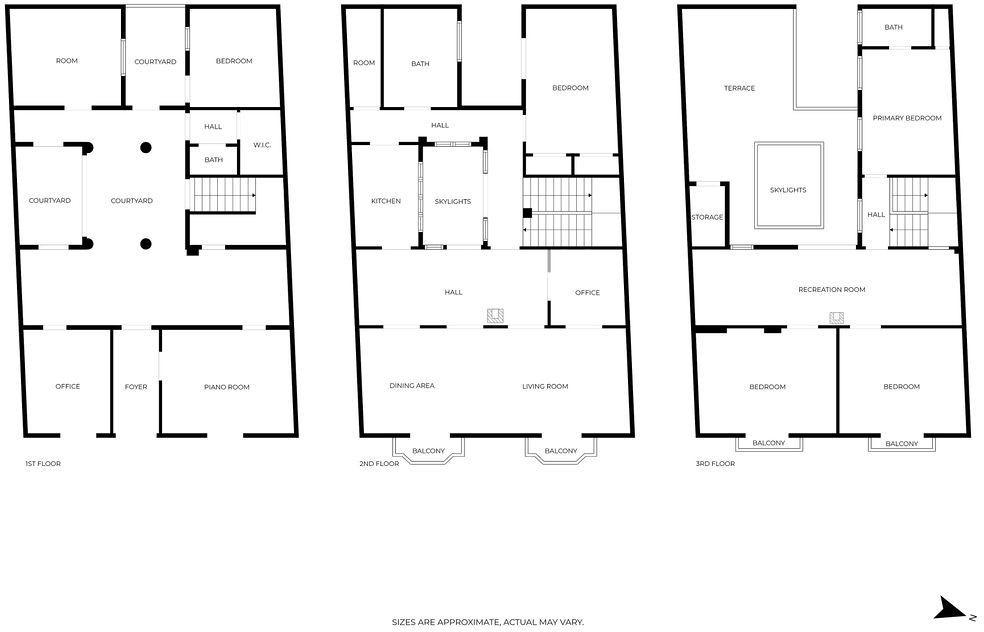
Hidden within the historic streets of central Málaga, this remarkable courtyard house captures a way of living that has shaped Mediterranean homes for centuries. From the moment you enter, the house reveals its character: a generous open-air patio framed by elegant stone columns and wooden beams, where sunlight pours in from above and the atmosphere feels peaceful and timeless. Homes organised around a central courtyard have been part of Mediterranean life since antiquity, from the Roman domus to the patio houses of Andalusia.This is not a palace but something rarer — a true home shaped by history. Original tiles, handcrafted details and beautiful wooden doors and windows have been carefully preserved throughout. The courtyard design also creates a naturally calm interior climate, a quality that has made this architectural tradition so enduring in Mediterranean cities.The property offers 416 m² distributed across three levels organised around the central patio.The ground floor, centred around the courtyard, includes several bedrooms, a bathroom and generous interior spaces. It has previously functioned as an art gallery and could easily accommodate a creative studio, showroom or other professional activity, while a separate entrance allows the upper floors to remain private.The first floor hosts the main living spaces, including a bright living and dining room, a kitchen overlooking the courtyard and enjoys abundant light from the open patio. The principal bedroom with its private bathroom is also located on this level.The second floor offers three further bedrooms and another bathroom. From here, large glass doors open directly onto the private roof terrace, a peaceful retreat above the historic rooftops of the city.With eight bedrooms and three bathrooms, the house offers exceptional flexibility as a spacious family home, a creative residence or a distinctive investment opportunity.A home where history is not simply preserved but lived, and where the courtyard remains the quiet heart of daily life in Málaga.

Alternatives

BOHACP1277_3494_V1_6137.jpg

For sale Townhouse Costa Del Sol Marbella East € 1.675.000,-

Price € 1.675.000,-
More information
1-7980e48d732b6fc85c14b43b94d2aa54.jpg

For sale Townhouse Costa Del Sol Marbella € 1.695.000,-

Price € 1.695.000,-
More information
1-7980e48d732b6fc85c14b43b94d2aa54.jpg

For sale Townhouse Costa Del Sol The Golden Mile € 1.695.000,-

Price € 1.695.000,-
More information
1-7980e48d732b6fc85c14b43b94d2aa54.jpg

For sale Townhouse Costa Del Sol Estepona € 1.755.000,-

Price € 1.755.000,-
More information
Disclaimer | Links