Selwo

For sale Residential Plot Costa Del Sol Selwo € 395.000,-

Ref.no: RSOR5311846
Price: € 395.000,-

1-7980e48d732b6fc85c14b43b94d2aa54.jpg

For sale Residential Plot Costa Del Sol Selwo € 395.000,-

Lot size500m²
Poolno
Gardenyes
Parkingno
Setting: Close To Schools, Urbanisation
Orientation: South
Condition: Excellent
Garden: Private
Security: 24 Hour Security
Utilities: Electricity, Drinkable Water
Category: Bargain, Beachfront, Cheap, Golf, Investment, Reduced
Ref.no: RSOR5311846
Price: € 395.000,-

More information ›››
For sale Residential Plot Costa Del Sol Selwo € 395.000,-

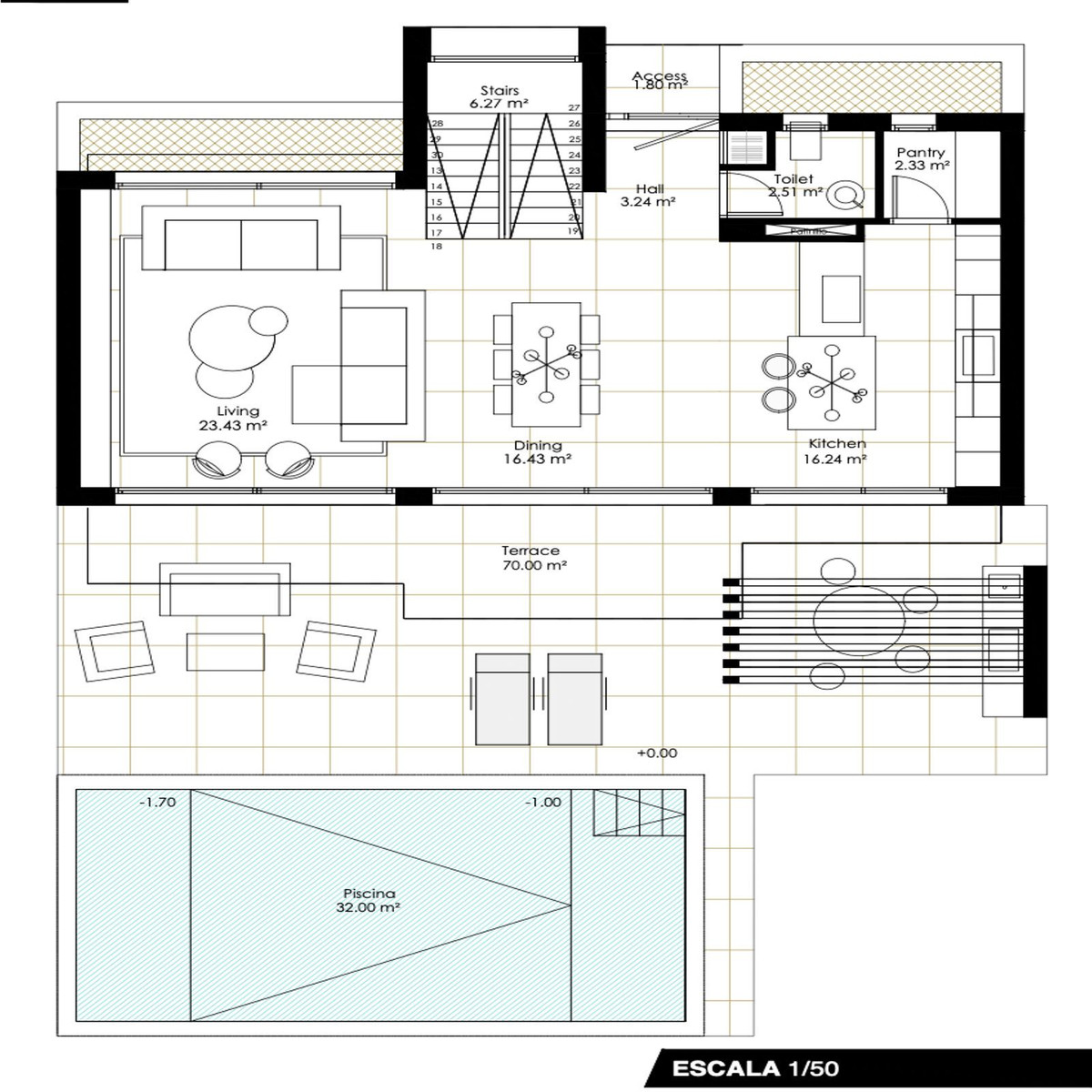
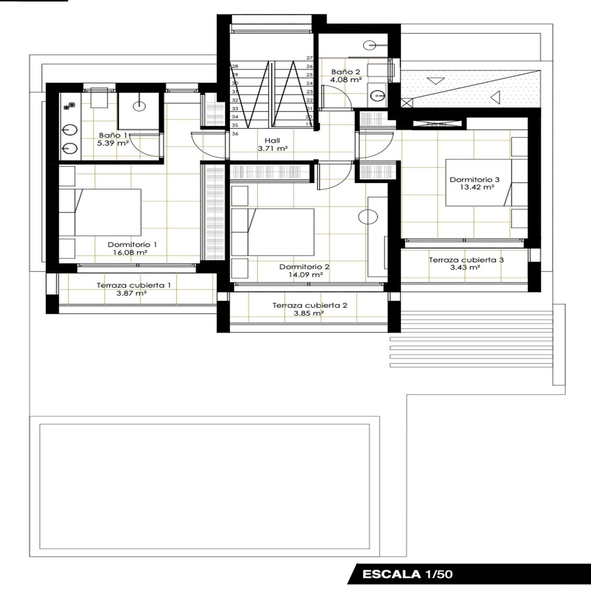
Plot with project for a villa in La Boladilla Resort, New Golden Mile, Estepona
Only 400 metres from the sea, within a gated luxury villa community

500 m² plot located in La Boladilla Resort, an exclusive gated community composed of approximately 100 plots designated for detached villas with consistent architectural standards, ensuring privacy, coherence and a high-quality residential environment.

The plot includes a project to build a villa distributed over two floors plus basement, with an approximate buildability of 225 m², providing an ideal base to develop a modern home for family living or investment purposes.

After a period of administrative delay, the town hall has reactivated building licences, allowing construction to start or resume, making this property a particularly attractive opportunity for developers, investors or end buyers.

Located on the New Golden Mile, in an area experiencing strong growth and international demand, this plot stands out for its proximity to the beach, its established surroundings and its appreciation potential.

An excellent opportunity to build a luxury villa to live in, develop for resale or hold as a long-term investment.

Alternatives

1-7980e48d732b6fc85c14b43b94d2aa54.jpg

For sale Residential Plot Costa Del Sol Manilva € 345.000,-

Price € 345.000,-
More information
1-7980e48d732b6fc85c14b43b94d2aa54.jpg

For sale Residential Plot Costa Del Sol Torremolinos € 360.000,-

Price € 360.000,-
More information
1-7980e48d732b6fc85c14b43b94d2aa54.jpg

For sale Land Costa Del Sol Mijas € 435.000,-

Price € 435.000,-
More information
1-7980e48d732b6fc85c14b43b94d2aa54.jpg

For sale Residential Plot Costa Del Sol Fuengirola € 385.000,-

Price € 385.000,-
More information
Disclaimer | Links