Benalmadena Pueblo

For sale Semi-Detached House Costa Del Sol Benalmadena Pueblo € 890.000,-

Ref.no: RSOR5249044
Price: € 890.000,-

1-7980e48d732b6fc85c14b43b94d2aa54.jpg

For sale Semi-Detached House Costa Del Sol Benalmadena Pueblo € 890.000,-

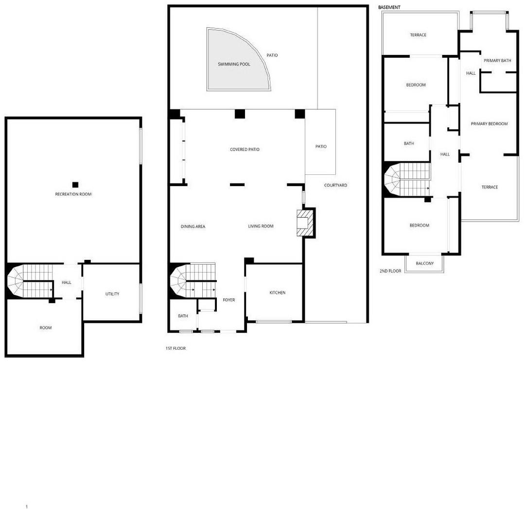
Bedrooms3
Bathrooms2
Lot size389m²
Poolyes
Gardenyes
Parkingno
Built year2007
Setting: Close To Golf, Close To Shops, Close To Town, Close To Schools
Pool: Private
Climate Control: Air Conditioning, Fireplace
Views: Sea, Mountain, Panoramic, Garden, Pool
Features: Covered Terrace, Fitted Wardrobes, Near Transport, Private Terrace, Storage Room, Utility Room, Ensuite Bathroom, Jacuzzi, Barbeque, Double Glazing, Near Church, Basement, Fiber Optic
Security: Electric Blinds, Alarm System
Ref.no: RSOR5249044
Price: € 890.000,-

More information ›››
For sale Semi-Detached House Costa Del Sol Benalmadena Pueblo € 890.000,-

Nestled in the charming heart of Benalmádena Pueblo, this elegant 285 m² semi-detached house blends comfort, space, and unforgettable views.

Step into a warm living room with a cozy fireplace, a bright dining area, and a spacious kitchen—perfect for family life and entertaining. There are on the top floor three comfortable bedrooms with wardrobes from ceiling to floor, two spacious bathrooms and terrace, and on the first floor additionally a guest toilet.

The home offers exceptional outdoor living: two spacious terraces, a big patio, and a 110 m² private garden. Relax by your private pool while admiring serene mountain views and Castillo Colomares. Enjoy the sea view from the front terrace and bedroom.

Additional features include a large multifunctional basement with natural light, big laundry room, storage room and a carport for two cars.

A beautiful blend of tranquility, style, and Andalusian charm— the house is waiting for new owners.

A home that truly has it all. Contact us for a viewing!

Alternatives

1-7980e48d732b6fc85c14b43b94d2aa54.jpg

For sale Semi-Detached House Costa Del Sol Estepona € 845.000,-

Price € 845.000,-
More information
1-7980e48d732b6fc85c14b43b94d2aa54.jpg

For sale Semi-Detached House Costa Del Sol San Pedro De Alcántara € 899.000,-

Price € 899.000,-
More information
1-7980e48d732b6fc85c14b43b94d2aa54.jpg

For sale Semi-Detached House Costa Del Sol Estepona € 840.000,-

Price € 840.000,-
More information
1-7980e48d732b6fc85c14b43b94d2aa54.jpg

For sale Semi-Detached House Costa Del Sol Benalmadena Costa € 859.000,-

Price € 859.000,-
More information
Disclaimer | Links