Los Pacos

For sale Townhouse Costa Del Sol Los Pacos € 315.000,-

Ref.no: RSOR5251282
Price: € 315.000,-

1-7980e48d732b6fc85c14b43b94d2aa54.jpg

For sale Townhouse Costa Del Sol Los Pacos € 315.000,-

Bedrooms4
Bathrooms2
Lot size104m²
Poolno
Gardenno
Parkingyes
Built year1981
Setting: Village, Close To Schools
Orientation: East, West
Condition: Recently Renovated
Climate Control: Pre Installed A/C
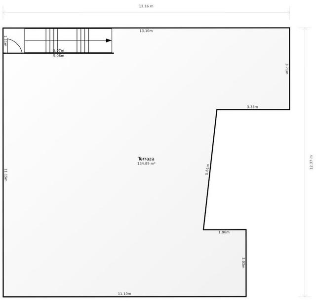
Features: Private Terrace
Kitchen: Fully Fitted
Parking: Garage, Private
Utilities: Electricity, Drinkable Water
Category: Bargain, Resale
Ref.no: RSOR5251282
Price: € 315.000,-

More information ›››
For sale Townhouse Costa Del Sol Los Pacos € 315.000,-

Opportunity in Los Pacos

Beautiful house recently renovated, all on one floor and ready to move into.

It features a spacious living room with open-plan kitchen and direct access to a rear patio, perfect for outdoor living, 4 bedrooms, 2 full bathrooms, and a private garage space included.
On the upper level, the property offers a large solarium with the potential to build two independent apartments, making it an ideal choice both as a family home and as a high-yield investment.

Located in a quiet and well-connected area, close to schools, shops, and public transport.

Alternatives

1-7980e48d732b6fc85c14b43b94d2aa54.jpg

For sale Townhouse Costa Del Sol Mijas Golf € 345.000,-

Price € 345.000,-
More information
1-7980e48d732b6fc85c14b43b94d2aa54.jpg

For sale Townhouse Costa Del Sol Alhaurín El Grande € 279.000,-

Price € 279.000,-
More information
1-7980e48d732b6fc85c14b43b94d2aa54.jpg

For sale Townhouse Costa Del Sol Mijas € 265.000,-

Price € 265.000,-
More information
1-7980e48d732b6fc85c14b43b94d2aa54.jpg

For sale Townhouse Costa Del Sol Las Lagunas € 290.000,-

Price € 290.000,-
More information
Disclaimer | Links