Alhaurín El Grande

For sale Detached Villa Costa Del Sol Alhaurín El Grande € 639.000,-

Ref.no: RSOR5203909
Price: € 639.000,-

1-7980e48d732b6fc85c14b43b94d2aa54.jpg

For sale Detached Villa Costa Del Sol Alhaurín El Grande € 639.000,-

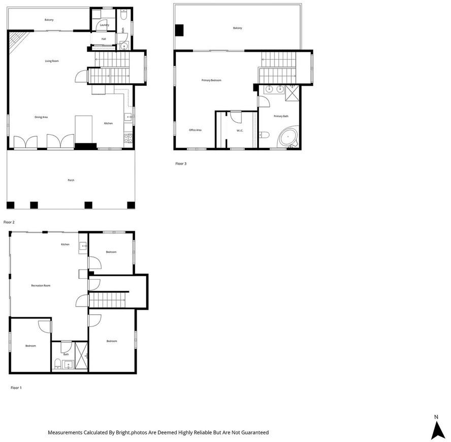
Bedrooms4
Bathrooms3
Lot size6555m²
Living area327m²
Poolyes
Gardenyes
Parkingyes
Built year2008
Setting: Country, Mountain Pueblo
Orientation: South
Condition: Good
Pool: Private
Views: Mountain, Country, Garden
Features: Fitted Wardrobes, Private Terrace
Kitchen: Fully Fitted
Garden: Private
Security: Alarm System
Parking: Private
Ref.no: RSOR5203909
Price: € 639.000,-

More information ›››
For sale Detached Villa Costa Del Sol Alhaurín El Grande € 639.000,-

Welcome to this villa in the Alhaurín countryside offering 4 bedrooms, 4 bathrooms, over 5,000 m² plot and a private pool!

Beautiful and spacious villa located in a peaceful area of the Alhaurín countryside, offering total privacy and excellent outdoor space. Set on a large, mostly flat plot of over 5,000 m² with mature fruit trees, landscaped gardens, and a private swimming pool.

The house features 4 double bedrooms and 4 bathrooms, a bright open-plan living/dining area, and a fully equipped kitchen. Several terraces surround the house, ideal for outdoor dining, relaxing, or entertaining.

Double carport as well as parking on the drive way. Tourist licence in place.

Perfect for families, nature lovers, or anyone looking for a quiet retreat with easy access to Alhaurín de la Torre, Málaga, and the coast. The plot offers plenty of potential to extend or cultivate more land.

Quiet and private location with mountain views, ample parking and only a short drive to town, airport, and the coast.
A fantastic opportunity to own a versatile villa in the heart of the Andalusian countryside.

Welcome!

Alternatives

1-7980e48d732b6fc85c14b43b94d2aa54.jpg

For sale Detached Villa Costa Del Sol Ronda € 550.000,-

Price € 550.000,-
More information
1-7980e48d732b6fc85c14b43b94d2aa54.jpg

For sale Detached Villa Costa Del Sol Calahonda € 650.000,-

Price € 650.000,-
More information
1-7980e48d732b6fc85c14b43b94d2aa54.jpg

For sale Detached Villa Costa Del Sol Caleta De Vélez € 650.000,-

Price € 650.000,-
More information
1-7980e48d732b6fc85c14b43b94d2aa54.jpg

For sale Detached Villa Costa Del Sol Cómpeta € 575.000,-

Price € 575.000,-
More information
Disclaimer | Links